来源: 最后更新:22-09-18 09:24:27
无锡丽景佳苑二期南地块安置房项目(地址+规划)
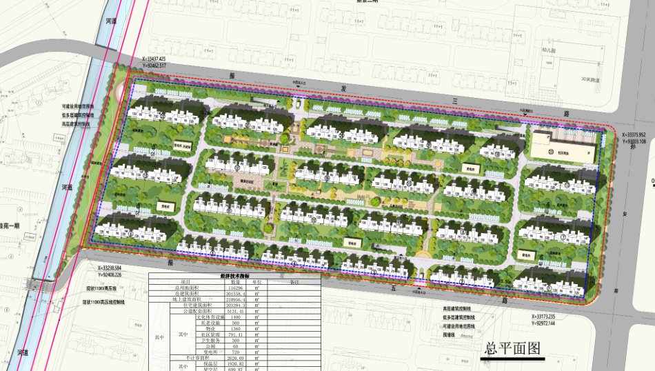
项目概况:项目位于新吴区振发三路南侧、孙安路西侧。
规划设计方案:总用地面积约11.6万平方米,总建筑面积约30.2万平方米,其中地下建筑面积约9万平方米。项目建成后,将提供2000余套安置房。

丽景佳苑三期东地块安置房项目
项目概况:项目位于新吴区长江东路北侧、孙安路西侧。
规划设计方案:总用地面积约13.9万平方米,总建筑面积约32.8万平方米,其中地下建筑面积约9万平方米。项目建成后,将提供约2200套安置房。该小区配建一个15班幼儿园,占地面积约7200平方米。
帮同学化妆最高日入近千 帮朋友化妆帮同学化妆最高日入近千?浙江大二女生冲上热搜,彩妆,妆容,模特,王
2023吉林省紧缺急需职业工种目录政策解读 2024张杰上海演唱会启东直通车专线时间+票价 马龙谢幕,孙颖莎显示统治力,林诗栋紧追王楚钦,国乒新奥运周期竞争已启动 全世界都被吓了一跳 吓死全世界








